Описание блока междупутного лотка МПЛ-1.25
Блок междупутного лотка (МПЛ-1.25) применяется для устройства инженерных коммуникаций, таких как водоотводные системы, кабельные каналы и другие сооружения вдоль железнодорожных путей или автомобильных дорог. Изделие изготавливается компанией ГК "БЛОК", которая специализируется на производстве и поставке железобетонных изделий в Москве, из высокопрочного бетона класса В22.5 с армированием стальной арматурой, что обеспечивает его прочность, устойчивость к нагрузкам и долговечность.
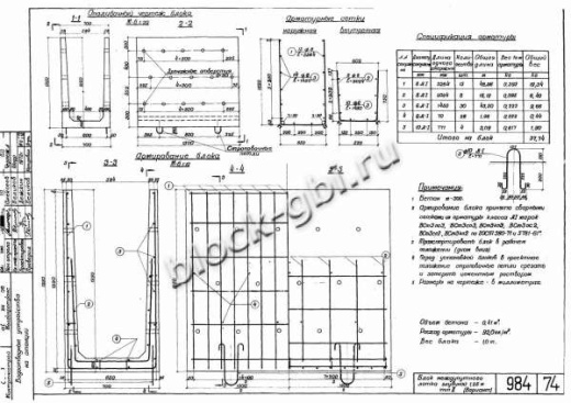
Нормативный документ: Альбом №984.
Применение блока междупутного лотка МПЛ-1.25
Блок междупутного лотка МПЛ-1.25 используется для создания надёжных конструкций, предназначенных для прокладки кабелей, трубопроводов и других инженерных сетей. Он служит важной частью системы, обеспечивающей безопасность, долговечность и функциональность объектов. Для монтажа могут применяться дополнительные элементы: раствор, закладные детали и другие комплектующие.
Типы блоков междупутных лотков
Железобетонные блоки междупутных лотков подразделяются на несколько типов в зависимости от назначения и конструкции:
- МПЛ: блок междупутного лотка;
- МПЛУ: блок усиленный;
- МПЛД: блок доборный;
- МПЛК: блок комбинированный.
Размеры зависят от типа: длина 1500–1600 мм, ширина 700–800 мм, высота 1350–1400 мм.
Основные параметры, размеры и характеристики
- Длина L, мм: 1500
- Ширина b, мм: 700
- Высота h, мм: 1350
- Масса, тонн: 1
- Объем бетона, м³: 0.41
- Класс бетона: B22.5 (марка М300)
- Геометрический объем, м³: 1.4175
- Сталь, кг: 28.66
Закладные элементы
- Закладная 1: Сетка С1
- Закладная 2: Сетка С2
- Закладная 3: Сетка С3
- Закладная 4: Отдельные стержни
Дополнительные характеристики
- Марка по морозостойкости: F150–F200;
- Марка по водонепроницаемости: W6–W8;
- Технология изготовления: формование с использованием высокопрочного бетона.
Нормы загрузки
- Норма загрузки в автотранспорт 20 т, шт: 20
Расшифровка маркировки МПЛ-1.25
Маркировка "МПЛ-1.25" содержит следующую информацию:
- МПЛ – блок междупутного лотка;
- 1.25 – условная длина изделия в метрах (1500 мм).
Условия транспортировки и хранения
Блоки междупутного лотка МПЛ-1.25 перевозятся автомобильным или железнодорожным транспортом с использованием специальных захватных устройств (строп). Хранение осуществляется на ровных площадках с твердым покрытием. Блоки устанавливаются горизонтально в штабель высотой не более 2,5 м. Для предотвращения повреждений между изделиями устанавливаются деревянные прокладки.
Контроль качества блока междупутного лотка МПЛ-1.25
Каждый блок междупутного лотка МПЛ-1.25 проходит многоступенчатый контроль качества. Проверяются:
- прочность бетона (не ниже класса B22.5);
- соответствие геометрических размеров проектным данным;
- морозостойкость и водонепроницаемость бетона;
- точность расположения закладных элементов;
- отсутствие трещин, сколов и других дефектов.
Заключение
Блок междупутного лотка МПЛ-1.25 – это надежный и долговечный элемент для устройства инженерных коммуникаций. Благодаря использованию качественных материалов и современных технологий производства, он обеспечивает прочность, устойчивость и долговечность конструкций. Для заказа качественных железобетонных изделий обращайтесь к профессионалам своего дела – компании ГК "БЛОК".
Смотрите также:
| Варианты написания товара |
|---|
| Блок междупутного лотка МПЛ-1.25 |
| МПЛ-1.25 блок междупутного лотка |
| Блок междупутного лотка МПЛ-1.25 Альбом №984 |
| МПЛ-1.25 Альбом №984 |
| МПЛ-1.25 |
| Блок междупутного лотка МПЛ-1.25 ГОСТ |
| МПЛ-1.25 ГОСТ |
|
ГОСТ/Серия
|
Альбом №984 |
|
Длина, мм
|
1500 |
|
Ширина, мм
|
700 |
|
Высота, мм
|
1350 |
|
Масса, тонн
|
1 |
|
Объем бетона, куб.м
|
0.41 |
|
Класс бетона
|
В22,5 |
|
Геометрический объем, м.куб
|
1.4175 |
|
Сталь, кг
|
28.66 |
|
Закладная 1
|
Сетка С1 |
|
Закладная 2
|
Сетка С2 |
|
Закладная 3
|
Сетка С3 |
|
Закладная 4
|
Отдельные стержни |
Как купить
Процесс покупки железобетонных изделий у нас прост и удобен. Следуйте этим шагам:
- Выбор продукции: Ознакомьтесь с нашим ассортиментом и выберите необходимые железобетонные изделия.
- Консультация: Свяжитесь с нашим менеджером для получения консультации по выбору продукции и уточнения всех деталей. Вы можете позвонить нам или написать на электронную почту.
- Оформление заказа: После согласования всех деталей оформите заказ. Менеджер поможет вам заполнить все необходимые документы.
- Согласование доставки: После оформления заказа наш менеджер свяжется с вами для согласования условий и сроков доставки.
- Оплата: Выберите удобный способ оплаты. Мы предлагаем несколько вариантов, включая безналичный расчет.
- Получение товара: После выполнения всех условий заказа, вы получите железобетонные изделия в назначенное время и по согласованному адресу. При получении подпишите акт приема-передачи.
Если у вас возникли вопросы на любом этапе покупки, не стесняйтесь обращаться к нашим менеджерам!
Оплата
Мы принимаем только безналичные платежи и работаем исключительно с юридическими лицами. Пожалуйста, ознакомьтесь с условиями оплаты ниже:
- Способ оплаты: Все расчеты производятся безналичным путем. Мы не принимаем наличные.
- Счет на оплату: После оформления заказа вам будет выставлен счет, который необходимо оплатить в срок, указанный в документе.
- Реквизиты: Все необходимые банковские реквизиты будут предоставлены в счете. Убедитесь, что все данные указаны правильно для успешного перевода.
- Подтверждение оплаты: После осуществления платежа отправьте нам подтверждение, чтобы мы могли оперативно обработать ваш заказ.
- Получение документов: После полной оплаты вы получите все необходимые документы, включая акт выполненных работ, товарные накладные и сертификаты на продукцию.
Мы работаем с НДС и предоставляем все необходимые сертификаты и документы. Все гарантии будут прописаны в договоре, что обеспечивает прозрачность и надежность сотрудничества.
Если у вас есть вопросы по поводу процесса оплаты, не стесняйтесь обращаться к нашим менеджерам за помощью!
Наша оперативность — ваше удобство. Мы гарантируем своевременную доставку железобетонных изделий, что является ключевым фактором для успешной реализации ваших строительных проектов. Доставка осуществляется прямо к вашему объекту с учетом всех стандартов качества.
Основные условия доставки:
• Выбор тарифа: Вы можете выбрать способ расчета стоимости доставки — почасовой или по зонам.
• Согласование: Менеджер свяжется с вами для уточнения деталей после оформления заказа.
• Время на погрузку: Комплектация товара занимает от 1 до 3 дней в зависимости от объема.
• Акт приема-передачи: Продукция передается по акту приема-передачи.
Тарифы на доставку:
Цены варьируются в зависимости от расстояния и региона. Все тарифы включают НДС. При неблагоприятных погодных условиях возможны небольшие изменения в стоимости.
География доставки:
Мы работаем по всей территории РФ и имеем 12 офисов и производств, чтобы обеспечить удобные условия для доставки.
Для точного расчета стоимости доставки обращайтесь к нашим менеджерам!

