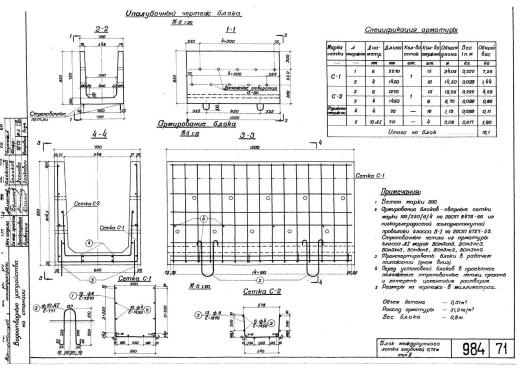
Описание блока междупутного лотка МПЛ-0.75
Блок междупутного лотка (МПЛ-0.75) Альбом №984 применяется для устройства водоотводных систем, дренажных канав и других инженерных коммуникаций между железнодорожными путями. Изделие изготавливается из высокопрочного бетона с армированием стальной арматурой, что обеспечивает его прочность, устойчивость к нагрузкам и долговечность.
Применение блока междупутного лотка МПЛ-0.75
Блок междупутного лотка МПЛ-0.75 используется как элемент для строительства водоотводных и дренажных систем, предназначенных для отвода поверхностных и грунтовых вод в зоне железнодорожных путей. Он служит важной частью системы, обеспечивающей защиту от затопления, эрозии грунта и других негативных последствий. Для монтажа могут применяться дополнительные элементы: раствор, закладные детали, петли для транспортировки и другие комплектующие.
Типы блоков междупутных лотков
Блоки междупутных лотков подразделяются на несколько типов в зависимости от размеров и назначения:
- МПЛ: междупутный лоток;
- МПД: междупутный доборный элемент;
- МПУ: универсальный междупутный лоток;
- МПП: междупутный промежуточный элемент.
Размеры зависят от типа: длина 1500–3000 мм, ширина 850–1000 мм, высота 700–1000 мм.
Основные параметры, размеры и характеристики
- Длина L, мм: 1500
- Ширина b, мм: 850
- Высота h, мм: 700
- Масса, тонн: 0,8
- Объем бетона, м³: 0,31
- Геометрический объем, м³: 0,8925
- Расход стали, кг: 16,1
Закладные детали
- Сетка С1: основной армирующий элемент;
- Сетка С2: дополнительный армирующий элемент;
- Отдельные стержни: усиление конструкции;
- Петли: элементы для удобства транспортировки и монтажа.
Дополнительные характеристики
- Класс бетона: B22,5 (марка М300)
- Марка по морозостойкости: F200–F300
- Марка по водонепроницаемости: W6–W8
- Технология изготовления: вибропрессование или формование с использованием высокопрочного бетона.
Нормы загрузки
- Норма загрузки в автотранспорт 20 т, шт: 25
Документы
- Нормативный документ: Альбом №984
Расшифровка маркировки МПЛ-0.75
Маркировка "МПЛ-0.75" содержит следующую информацию:
- МПЛ – междупутный лоток;
- 0.75 – высота лотка в метрах (700 мм).
Условия транспортировки и хранения
Блоки междупутных лотков МПЛ-0.75 перевозятся автомобильным или железнодорожным транспортом с использованием специальных захватных устройств (строп). Хранение осуществляется на ровных площадках с твердым покрытием. Блоки устанавливаются горизонтально в штабель высотой не более 2,5 м. Для предотвращения повреждений между изделиями устанавливаются деревянные прокладки.
Контроль качества блока междупутного лотка МПЛ-0.75
Каждый блок междупутного лотка МПЛ-0.75 проходит многоступенчатый контроль качества в соответствии с Альбом №984. Проверяются:
- прочность бетона (не ниже класса B22,5);
- соответствие геометрических размеров проектным данным;
- качество армирования (наличие арматурного каркаса, толщина защитного слоя бетона);
- морозостойкость и водонепроницаемость бетона;
- точность расположения закладных элементов;
- отсутствие трещин, сколов и других дефектов.
Заключение
Блок междупутного лотка МПЛ-0.75 – надежный и долговечный элемент для устройства водоотводных и дренажных систем в зоне железнодорожных путей. Благодаря строгому соблюдению требований Альбом №984 и использованию качественных материалов, он обеспечивает прочность, устойчивость и долговечность конструкций. Для заказа качественных железобетонных блоков обращайтесь к производителям с сертификатами соответствия и опытом работы в сфере ЖБИ.
Смотрите также:
| Варианты написания товара |
|---|
| Блок междупутного лотка МПЛ-0.75 |
| МПЛ-0.75 блок междупутного лотка |
| Блок междупутного лотка МПЛ0.75 |
| МПЛ0.75 блок междупутного лотка |
| МПЛ-0.75 |
| МПЛ0.75 |
| Блок междупутного лотка МПЛ-0.75 Альбом №984 |
| МПЛ-0.75 Альбом №984 |
| МПЛ0.75 Альбом №984 |
|
ГОСТ/Серия
|
Альбом №984 |
|
Длина, мм
|
1500 |
|
Ширина, мм
|
850 |
|
Высота, мм
|
700 |
|
Масса, тонн
|
0.8 |
|
Объем бетона, куб.м
|
0.31 |
|
Класс бетона
|
В22,5 |
|
Геометрический объем, м.куб
|
0.8925 |
|
Сталь, кг
|
16.1 |
|
Закладная 1
|
Сетка С1 |
|
Закладная 2
|
Сетка С2 |
|
Закладная 3
|
Отдельные стержни |
|
Закладная 4
|
Петли |
Как купить
Процесс покупки железобетонных изделий у нас прост и удобен. Следуйте этим шагам:
- Выбор продукции: Ознакомьтесь с нашим ассортиментом и выберите необходимые железобетонные изделия.
- Консультация: Свяжитесь с нашим менеджером для получения консультации по выбору продукции и уточнения всех деталей. Вы можете позвонить нам или написать на электронную почту.
- Оформление заказа: После согласования всех деталей оформите заказ. Менеджер поможет вам заполнить все необходимые документы.
- Согласование доставки: После оформления заказа наш менеджер свяжется с вами для согласования условий и сроков доставки.
- Оплата: Выберите удобный способ оплаты. Мы предлагаем несколько вариантов, включая безналичный расчет.
- Получение товара: После выполнения всех условий заказа, вы получите железобетонные изделия в назначенное время и по согласованному адресу. При получении подпишите акт приема-передачи.
Если у вас возникли вопросы на любом этапе покупки, не стесняйтесь обращаться к нашим менеджерам!
Оплата
Мы принимаем только безналичные платежи и работаем исключительно с юридическими лицами. Пожалуйста, ознакомьтесь с условиями оплаты ниже:
- Способ оплаты: Все расчеты производятся безналичным путем. Мы не принимаем наличные.
- Счет на оплату: После оформления заказа вам будет выставлен счет, который необходимо оплатить в срок, указанный в документе.
- Реквизиты: Все необходимые банковские реквизиты будут предоставлены в счете. Убедитесь, что все данные указаны правильно для успешного перевода.
- Подтверждение оплаты: После осуществления платежа отправьте нам подтверждение, чтобы мы могли оперативно обработать ваш заказ.
- Получение документов: После полной оплаты вы получите все необходимые документы, включая акт выполненных работ, товарные накладные и сертификаты на продукцию.
Мы работаем с НДС и предоставляем все необходимые сертификаты и документы. Все гарантии будут прописаны в договоре, что обеспечивает прозрачность и надежность сотрудничества.
Если у вас есть вопросы по поводу процесса оплаты, не стесняйтесь обращаться к нашим менеджерам за помощью!
Наша оперативность — ваше удобство. Мы гарантируем своевременную доставку железобетонных изделий, что является ключевым фактором для успешной реализации ваших строительных проектов. Доставка осуществляется прямо к вашему объекту с учетом всех стандартов качества.
Основные условия доставки:
• Выбор тарифа: Вы можете выбрать способ расчета стоимости доставки — почасовой или по зонам.
• Согласование: Менеджер свяжется с вами для уточнения деталей после оформления заказа.
• Время на погрузку: Комплектация товара занимает от 1 до 3 дней в зависимости от объема.
• Акт приема-передачи: Продукция передается по акту приема-передачи.
Тарифы на доставку:
Цены варьируются в зависимости от расстояния и региона. Все тарифы включают НДС. При неблагоприятных погодных условиях возможны небольшие изменения в стоимости.
География доставки:
Мы работаем по всей территории РФ и имеем 12 офисов и производств, чтобы обеспечить удобные условия для доставки.
Для точного расчета стоимости доставки обращайтесь к нашим менеджерам!

