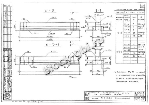
Описание балки Б-3
Балка железобетонная (Б-3) Серия 3.006.1-2.87 применяется для устройства несущих конструкций в зданиях и сооружениях, таких как перекрытия, прогоны, опоры и другие элементы. Изделие изготавливается из высокопрочного бетона с армированием стальной арматурой, что обеспечивает её прочность, устойчивость к нагрузкам и долговечность.
Применение балки Б-3
Балка Б-3 используется как несущий элемент для устройства перекрытий, прогонов, опор и других конструкций в жилых, промышленных и гражданских зданиях. Она служит важной частью системы, обеспечивающей равномерное распределение нагрузки, защиту от внешних воздействий и долговечность конструкций. Для монтажа могут применяться дополнительные элементы: раствор, закладные детали и другие комплектующие.
Типы балок
Железобетонные балки подразделяются на несколько типов в зависимости от размеров и назначения:
- Б: балка;
- БП: балка подкрановая;
- БК: балка консольная;
- БН: балка наклонная.
Размеры зависят от типа: длина 1840–6000 мм, ширина 300–500 мм, высота 250–800 мм.
Основные параметры, размеры и характеристики
- Длина L, мм: 1840
- Ширина b, мм: 300
- Высота h, мм: 250
- Масса, тонн: 0,35
- Объем бетона, м³: 0,14
- Класс бетона: B25 (марка М350)
- Геометрический объем, м³: 0,138
Закладные детали
- Каркас КР1: основной элемент армирования, обеспечивающий прочность конструкции;
- Отдельные стержни: дополнительный элемент армирования для усиления конструкции;
- Закладное изделие М-10: элемент для удобства монтажа и крепления балки.
Дополнительные характеристики
- Марка по морозостойкости: F200–F300
- Марка по водонепроницаемости: W8–W12
- Технология изготовления: вибропрессование или формование с использованием высокопрочного бетона.
Нормы загрузки
- Норма загрузки в автотранспорт 20 т, шт: 57
Документы
- Нормативный документ: Серия 3.006.1-2.87
Расшифровка маркировки Б-3
Маркировка "Б-3" содержит следующую информацию:
- Б – балка;
- 3 – порядковый номер конструктивного исполнения или типоразмер.
Условия транспортировки и хранения
Балки Б-3 перевозятся автомобильным или железнодорожным транспортом с использованием специальных захватных устройств (строп). Хранение осуществляется на ровных площадках с твердым покрытием. Балки устанавливаются горизонтально в штабель высотой не более 2,5 м. Для предотвращения повреждений между изделиями устанавливаются деревянные прокладки.
Контроль качества балки Б-3
Каждая балка Б-3 проходит многоступенчатый контроль качества в соответствии с Серия 3.006.1-2.87. Проверяются:
- прочность бетона (не ниже класса B25);
- соответствие геометрических размеров проектным данным;
- качество армирования (наличие арматурного каркаса, толщина защитного слоя бетона);
- морозостойкость и водонепроницаемость бетона;
- точность расположения закладных элементов;
- отсутствие трещин, сколов и других дефектов.
Заключение
Балка Б-3 – надежный и долговечный элемент для устройства несущих конструкций в зданиях и сооружениях. Благодаря строгому соблюдению требований Серия 3.006.1-2.87 и использованию качественных материалов, она обеспечивает прочность, устойчивость и долговечность конструкций. Для заказа качественных железобетонных балок обращайтесь к производителям с сертификатами соответствия и опытом работы в сфере ЖБИ.
Смотрите также:
| Варианты написания товара |
|---|
| Балка Б-3 |
| Б-3 балка |
| Балка Б3 |
| Б3 балка |
| Б-3 |
| Б3 |
| Балка Б-3 Серия 3.006.1-2.87 |
| Б-3 Серия 3.006.1-2.87 |
| Б3 Серия 3.006.1-2.87 |
|
ГОСТ/Серия
|
Серия 3.006.1-2.87 |
|
Длина, мм
|
1840 |
|
Ширина, мм
|
300 |
|
Высота, мм
|
250 |
|
Масса, тонн
|
0.35 |
|
Объем бетона, куб.м
|
0.14 |
|
Класс бетона
|
В25 |
|
Геометрический объем, м.куб
|
0.138 |
|
Закладная 1
|
Каркас КР1 |
|
Закладная 2
|
Отдельные стержни |
|
Закладная 3
|
Закладное изделие М-10 |
Как купить
Процесс покупки железобетонных изделий у нас прост и удобен. Следуйте этим шагам:
- Выбор продукции: Ознакомьтесь с нашим ассортиментом и выберите необходимые железобетонные изделия.
- Консультация: Свяжитесь с нашим менеджером для получения консультации по выбору продукции и уточнения всех деталей. Вы можете позвонить нам или написать на электронную почту.
- Оформление заказа: После согласования всех деталей оформите заказ. Менеджер поможет вам заполнить все необходимые документы.
- Согласование доставки: После оформления заказа наш менеджер свяжется с вами для согласования условий и сроков доставки.
- Оплата: Выберите удобный способ оплаты. Мы предлагаем несколько вариантов, включая безналичный расчет.
- Получение товара: После выполнения всех условий заказа, вы получите железобетонные изделия в назначенное время и по согласованному адресу. При получении подпишите акт приема-передачи.
Если у вас возникли вопросы на любом этапе покупки, не стесняйтесь обращаться к нашим менеджерам!
Оплата
Мы принимаем только безналичные платежи и работаем исключительно с юридическими лицами. Пожалуйста, ознакомьтесь с условиями оплаты ниже:
- Способ оплаты: Все расчеты производятся безналичным путем. Мы не принимаем наличные.
- Счет на оплату: После оформления заказа вам будет выставлен счет, который необходимо оплатить в срок, указанный в документе.
- Реквизиты: Все необходимые банковские реквизиты будут предоставлены в счете. Убедитесь, что все данные указаны правильно для успешного перевода.
- Подтверждение оплаты: После осуществления платежа отправьте нам подтверждение, чтобы мы могли оперативно обработать ваш заказ.
- Получение документов: После полной оплаты вы получите все необходимые документы, включая акт выполненных работ, товарные накладные и сертификаты на продукцию.
Мы работаем с НДС и предоставляем все необходимые сертификаты и документы. Все гарантии будут прописаны в договоре, что обеспечивает прозрачность и надежность сотрудничества.
Если у вас есть вопросы по поводу процесса оплаты, не стесняйтесь обращаться к нашим менеджерам за помощью!
Наша оперативность — ваше удобство. Мы гарантируем своевременную доставку железобетонных изделий, что является ключевым фактором для успешной реализации ваших строительных проектов. Доставка осуществляется прямо к вашему объекту с учетом всех стандартов качества.
Основные условия доставки:
• Выбор тарифа: Вы можете выбрать способ расчета стоимости доставки — почасовой или по зонам.
• Согласование: Менеджер свяжется с вами для уточнения деталей после оформления заказа.
• Время на погрузку: Комплектация товара занимает от 1 до 3 дней в зависимости от объема.
• Акт приема-передачи: Продукция передается по акту приема-передачи.
Тарифы на доставку:
Цены варьируются в зависимости от расстояния и региона. Все тарифы включают НДС. При неблагоприятных погодных условиях возможны небольшие изменения в стоимости.
География доставки:
Мы работаем по всей территории РФ и имеем 12 офисов и производств, чтобы обеспечить удобные условия для доставки.
Для точного расчета стоимости доставки обращайтесь к нашим менеджерам!

